Projects | JOG Architecture
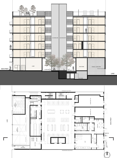
327 MAIN ST SUPPORTIVE HOUSING

LOCATION Downtown Eastside, Vancouver
CLIENT Wall Financial / BC Housing
YEAR 2025
PHASE Development Permit Application
SIZE 38,802 SF (FSR Area)
HEIGHT 6 - Storey
UNIT NUMBER 60 Self-contained Units

This 6-storey mixed-use building introduces approximately 60 self-contained residential units, ground-floor retail, and a basement for operations and storage, replacing a vacant single-storey retail building. The project represents a strategic infill opportunity that reinforces the mixed-use character of Main Street.

Designed in alignment with the DTES Plan, Oppenheimer District ODP, and City housing and urban design objectives. The building’s form, massing, and materials respond to the surrounding context, referencing the historic industrial and mixed-use character of the Downtown Eastside while presenting a contemporary architectural expression. Streetscape improvements and transparent ground-floor uses enhance the pedestrian experience and strengthen Main Street as an active urban corridor.
327 Main Street is envisioned as a thoughtfully designed mixed-use residential development that contributes to the vitality, stability, and long-term resilience of the Downtown Eastside, while supporting an inclusive and active urban environment.

PROJECT TEAM

ARCHITECTURE JOG Architecture Inc
LANDSCAPE TBD
ELECTRICAL Nemetz (S/A) & Associates Ltd
MECHANICAL Ron Wong & Associates Inc
STRUCTURAL TBD

 
LinkedIn